commercial.interior.leisure.restyling
![]() |
meanoclub
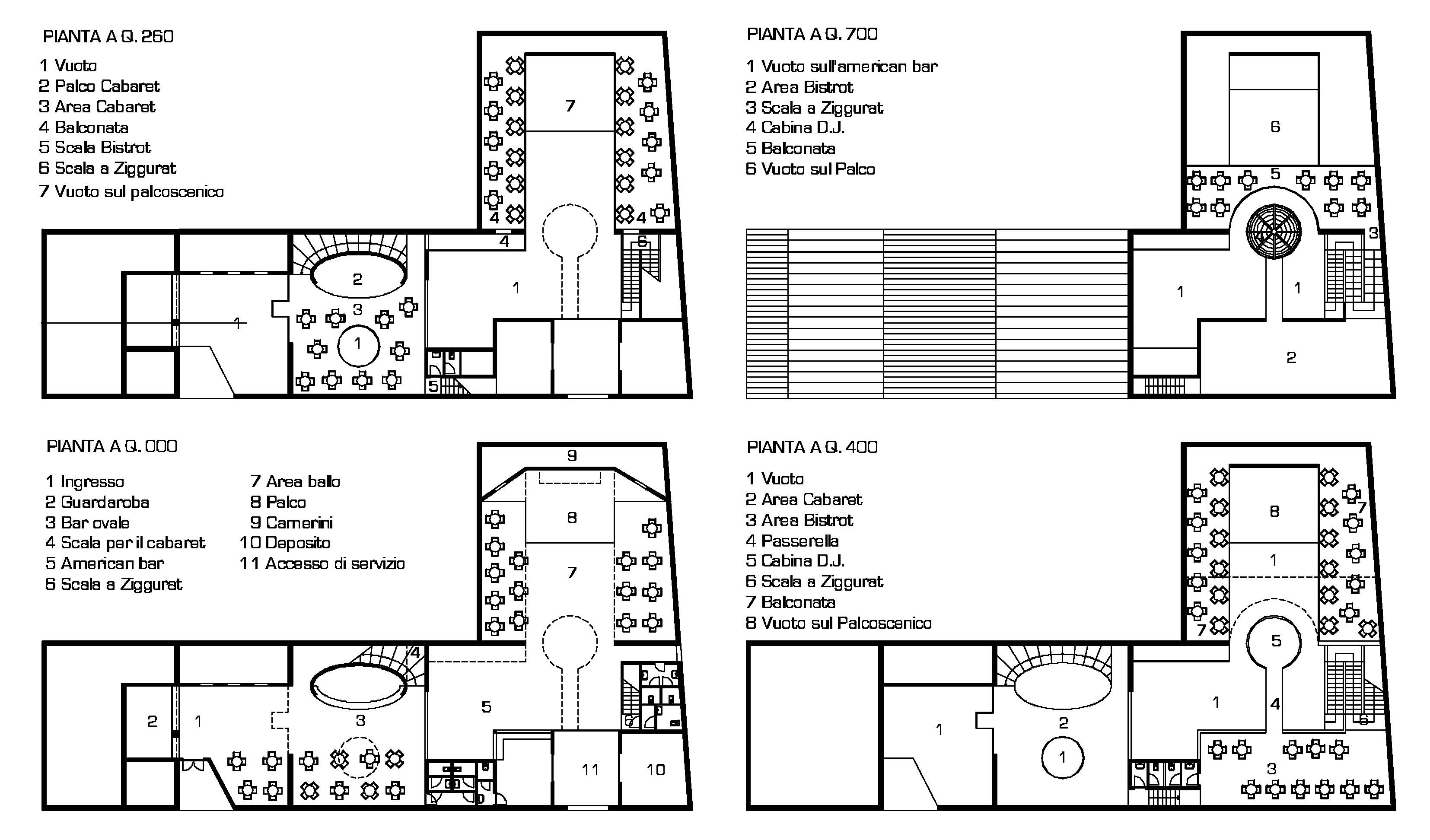
Meano BS Cliente: Barbieri Ferdinando Programma:Locale per l’intrattenimento serale in un ex-deposito vitivinicolo. Progetto:1996 S.U.: 450m2 Volume: 2.250m3 Budget: 700.000,00€ Categoria:commercial.interior.leisure.restyling |
|
|
![]() |
|
|
|